Projekt nowej remizy dla OSP Bukówek zatwierdzony
Po trzech tygodniach od podpisania umowy na przygotowanie projektu technicznego nowej remizy strażackiej dla OSP Bukówek projekt został jednogłośnie zatwierdzony.
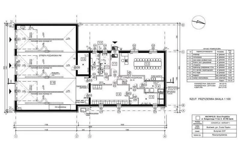
Biuro Projektowe „Archipolis” z Opola przy pełnej konsultacji z OSP Bukówek opracowało projekt techniczny dla tamtejszej jednostki. Od tego momentu pracownia projektowa rozpoczyna pracę nad wykonaniem projektu technicznego wraz z niezbędną dokumentacją pozwalającą na uzyskanie pozwolenia na budowę remizy strażackiej.
- Inwestycje w służby ratownicze to inwestycje w bezpieczeństwo i spokój mieszkańców, dlatego każda taka inicjatywa jest godna poparcia, a dzięki nowej remizie strażacy będą mieć lepsze warunki do pracy co znacząco wpłynie na skuteczność ich działań – komentuje Radny Rady Miejskiej w Środzie Śląskiej Zdzisław Kruszelnicki.
Obecna siedziba OSP znajduje się w budynku przy wiejskiej świetlicy w Bukówku i stała się zbyt mała dla jednostki działającej w krajowym systemie ratowniczo- gaśniczym. Powstająca remiza będzie budynkiem parterowym, wyposażonym w nowoczesne szatnie i sanitariaty. Powstaną trzy przestronne garaże oraz pomieszczenia socjalne i magazynowe.
- Jako Zarząd OSP Bukówek jesteśmy w pełni usatysfakcjonowani zatwierdzona koncepcją budowy nowej remizy. Braliśmy czynny udział w jej tworzeniu więc została dostosowana do potrzeb naszej jednostki. Została tak zaprojektowana aby była funkcjonalna i jednocześnie pozwalała utrzymać wysoki poziom gotowości bojowej OSP Bukówek – dodaje Prezes OSP Bukówek Jacek Kaznowski.
(um/prg)


ZOBACZ RÓWNIEŻ
ARTYKUŁY PARTNERÓW
Miejsce na Twoją reklamę
tel. kom. +48 500 027 343
